Gambar Denah Rumah Di Undangan

Dalam dunia arsitektur dan desain interior, denah rumah memegang peranan krusial. Ia adalah representasi visual yang mengkomunikasikan tata ruang, dimensi, dan hubungan antar ruangan dalam sebuah bangunan. Denah rumah bukan sekadar gambar teknis; ia adalah bahasa yang menghubungkan arsitek, desainer, kontraktor, dan pemilik rumah dalam mewujudkan visi hunian yang ideal. Memahami dan menginterpretasikan denah rumah dengan tepat merupakan keterampilan esensial bagi para profesional di bidang konstruksi dan desain.

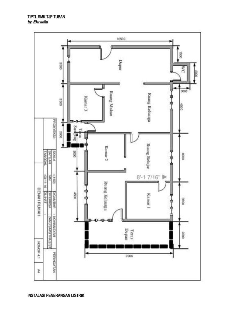
Gambar Denah Rumah 1

Denah rumah dengan tata ruang yang efisien dan detail dimensi yang jelas.

Denah rumah ini menampilkan tata ruang yang efisien, dengan penekanan pada pemanfaatan ruang secara optimal. Perhatikan bagaimana setiap ruangan diatur sedemikian rupa sehingga saling terhubung secara logis, menciptakan alur pergerakan yang nyaman dan intuitif. Detail dimensi yang tercantum pada denah ini memungkinkan kita untuk memahami skala dan proporsi setiap ruangan dengan akurat, sehingga memudahkan dalam perencanaan tata letak furnitur dan elemen dekoratif lainnya. Selain itu, simbol-simbol yang digunakan pada denah ini memberikan informasi penting mengenai jenis material yang digunakan, lokasi pintu dan jendela, serta instalasi utilitas seperti listrik dan air.

Gambar Denah Rumah 2

Denah rumah yang menonjolkan pencahayaan alami dan ventilasi silang.

Denah rumah ini menonjolkan pentingnya pencahayaan alami dan ventilasi silang dalam desain hunian yang sehat dan berkelanjutan. Jendela-jendela berukuran besar ditempatkan secara strategis untuk memaksimalkan masuknya cahaya matahari ke dalam ruangan, sementara ventilasi silang dirancang untuk menciptakan sirkulasi udara yang optimal, mengurangi kelembapan, dan menjaga suhu ruangan tetap nyaman. Selain itu, denah ini juga memperhatikan aspek privasi dan zonasi, dengan memisahkan area publik seperti ruang tamu dan ruang makan dari area privat seperti kamar tidur dan kamar mandi. Pemilihan material bangunan yang ramah lingkungan dan efisien energi juga menjadi pertimbangan penting dalam desain denah rumah ini.

Kedua denah rumah ini memberikan contoh bagaimana denah rumah dapat menjadi alat komunikasi yang efektif antara para profesional di bidang konstruksi dan desain dengan pemilik rumah. Dengan memahami dan menginterpretasikan denah rumah dengan benar, kita dapat memastikan bahwa visi hunian yang ideal dapat terwujud dengan sukses.

If you are searching about Gambar Rumah Untuk Denah Undangan - 54+ Koleksi Gambar you've came to the right web. We have 5 Images about Gambar Rumah Untuk Denah Undangan - 54+ Koleksi Gambar like Gambar Denah Rumah | PDF, Gambar Denah Rumah | PDF and also Gambar Denah Rumah | PDF. Here it is:

Gambar Rumah Untuk Denah Undangan - 54+ Koleksi Gambar

Gambar Rumah Untuk Denah Undangan - 54+ Koleksi Gambar www.kibrispdr.org

Detail Gambar Rumah Untuk Denah Undangan Koleksi Nomer 37

Detail Gambar Rumah Untuk Denah Undangan Koleksi Nomer 37 www.kibrispdr.org

Gambar Denah Rumah | PDF

Gambar Denah Rumah | PDF id.scribd.com

Gambar Denah Rumah | PDF

Gambar Denah Rumah | PDF www.scribd.com

Gambar Denah Rumah | PDF

Gambar Denah Rumah | PDF www.scribd.com

Iklan Atas Artikel

Iklan Tengah Artikel 1

Iklan Tengah Artikel 2

Iklan Bawah Artikel